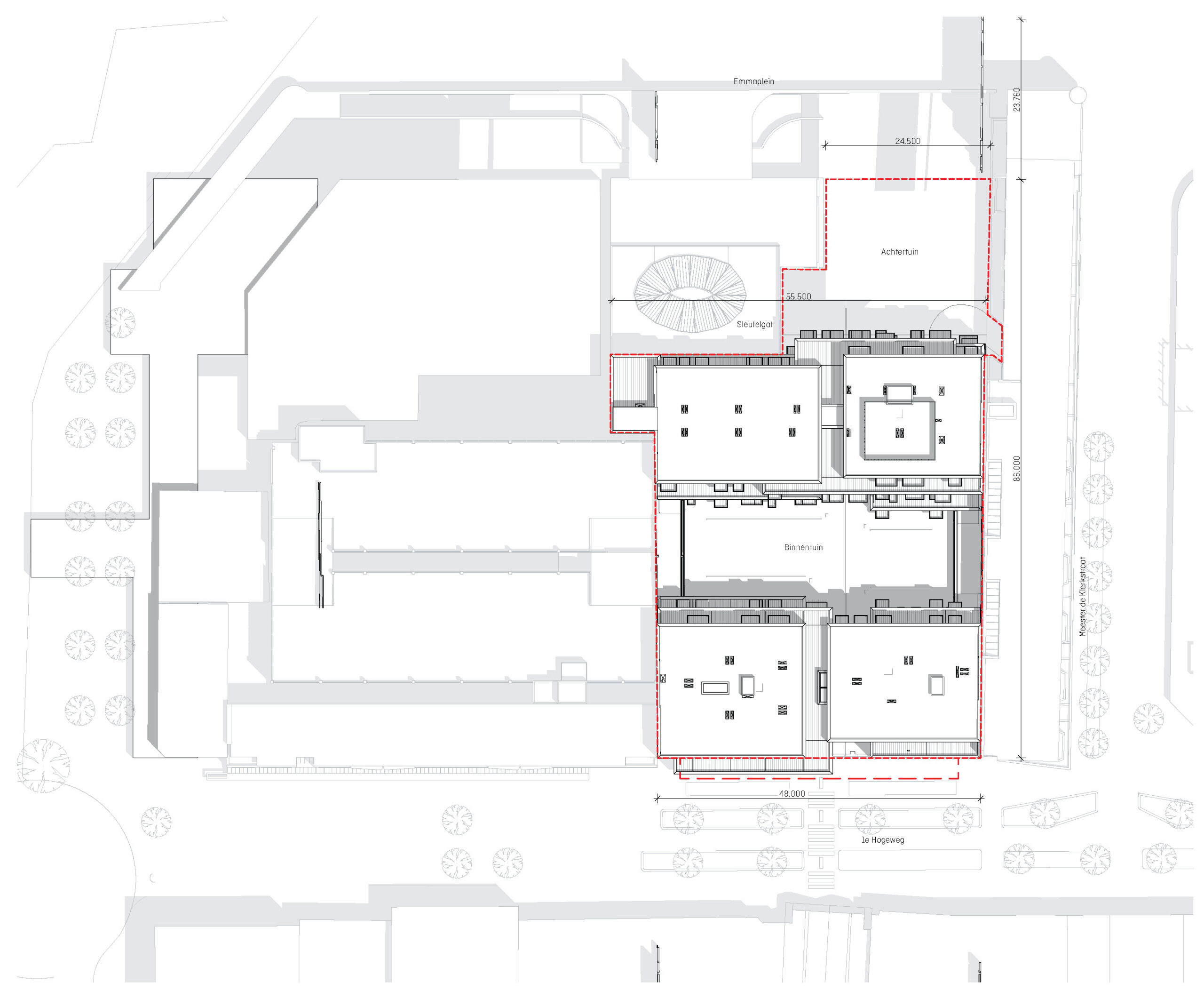
Residential complex on VenD location

A lifely sculpture to be discovered, where the heaviness defies gravity in form of residential blocks that can be experienced from every corner. Four main blocks are kept separate from each other at ground level, forming a whole cubic sculpture with spacious roof terraces, where the public space and vegetation crawls all over, forming a simbiosis where everything is intertwined.

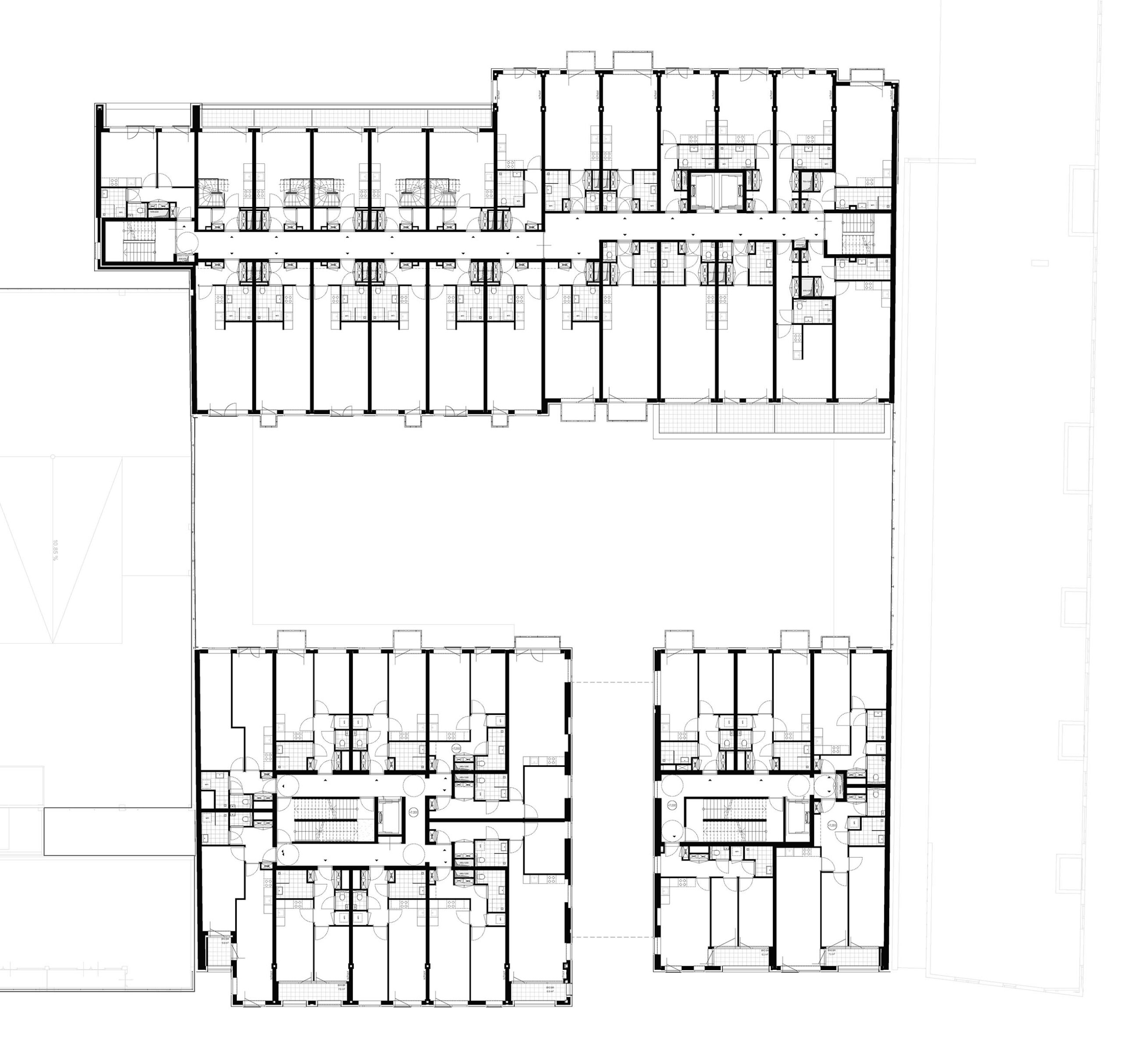
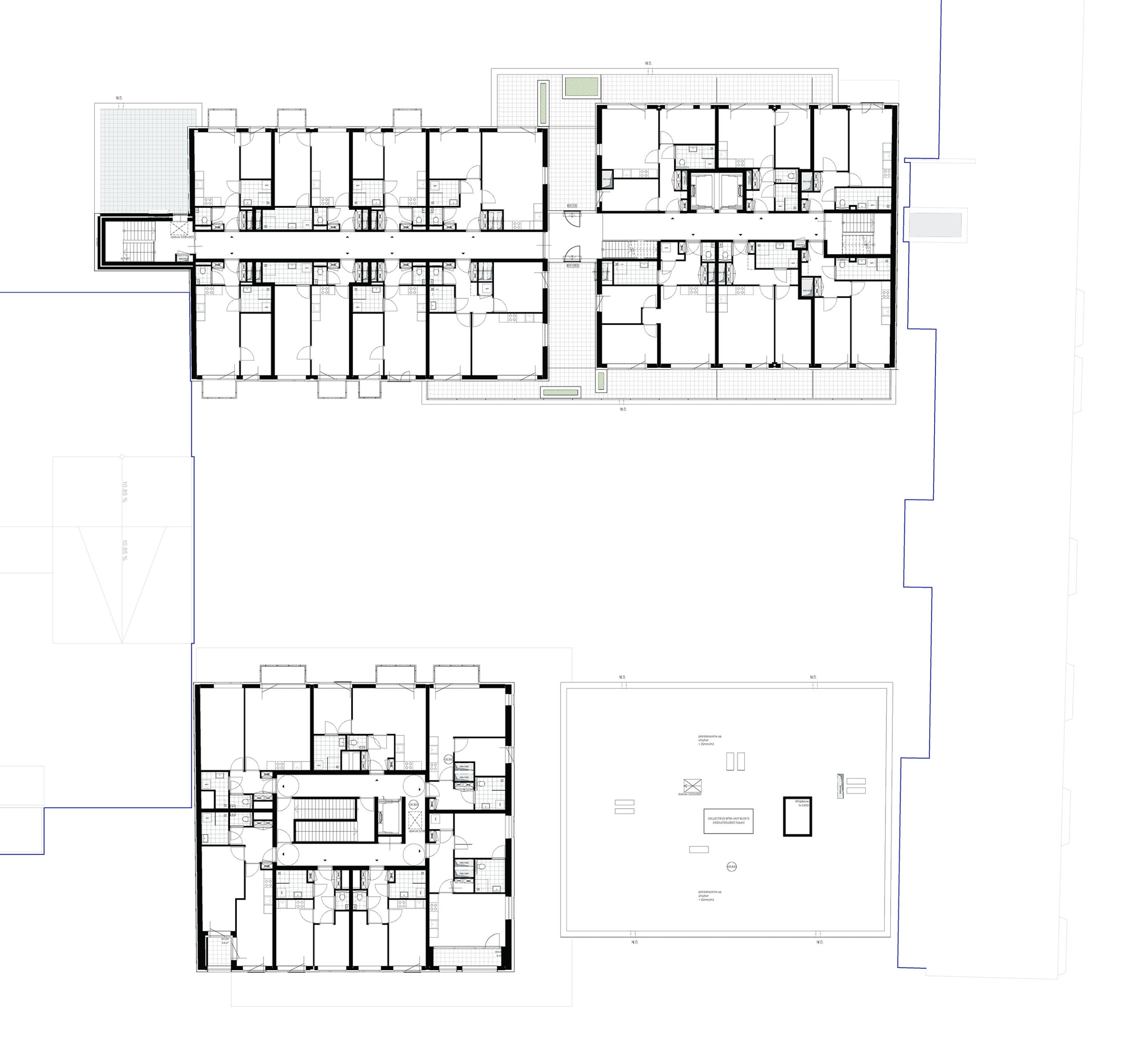
Development team from SO to TO. Design of dwelling typologies, facade development, Landscape design, visualizations. BIM building

Zeist 2024

Project of Nieuwe architecten